Töölön torppa
Töölön torppa
  • Ajankohtaista
  • Esittely
    • Toiminta
    • Toimitilat
    • Juhlatilat
    • Sauna
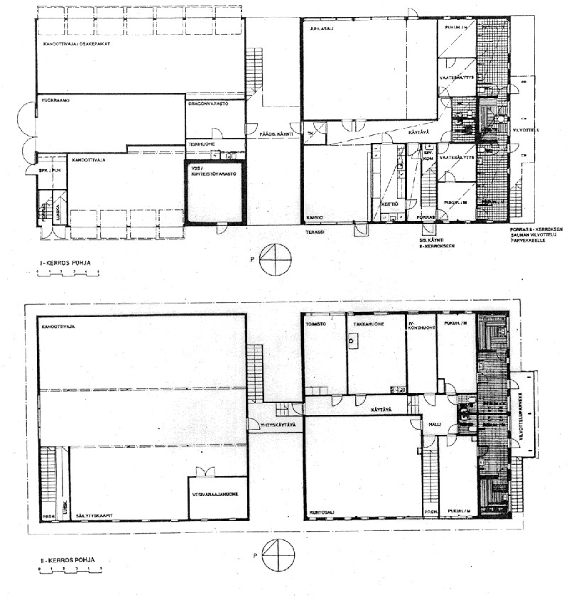
    • Pohja
    • Omistajat
    • Keittiö
    • Koristelu
  • Kuvia
  • Vinkkejä
  • Yhteystiedot

Suomen Vahvimmat